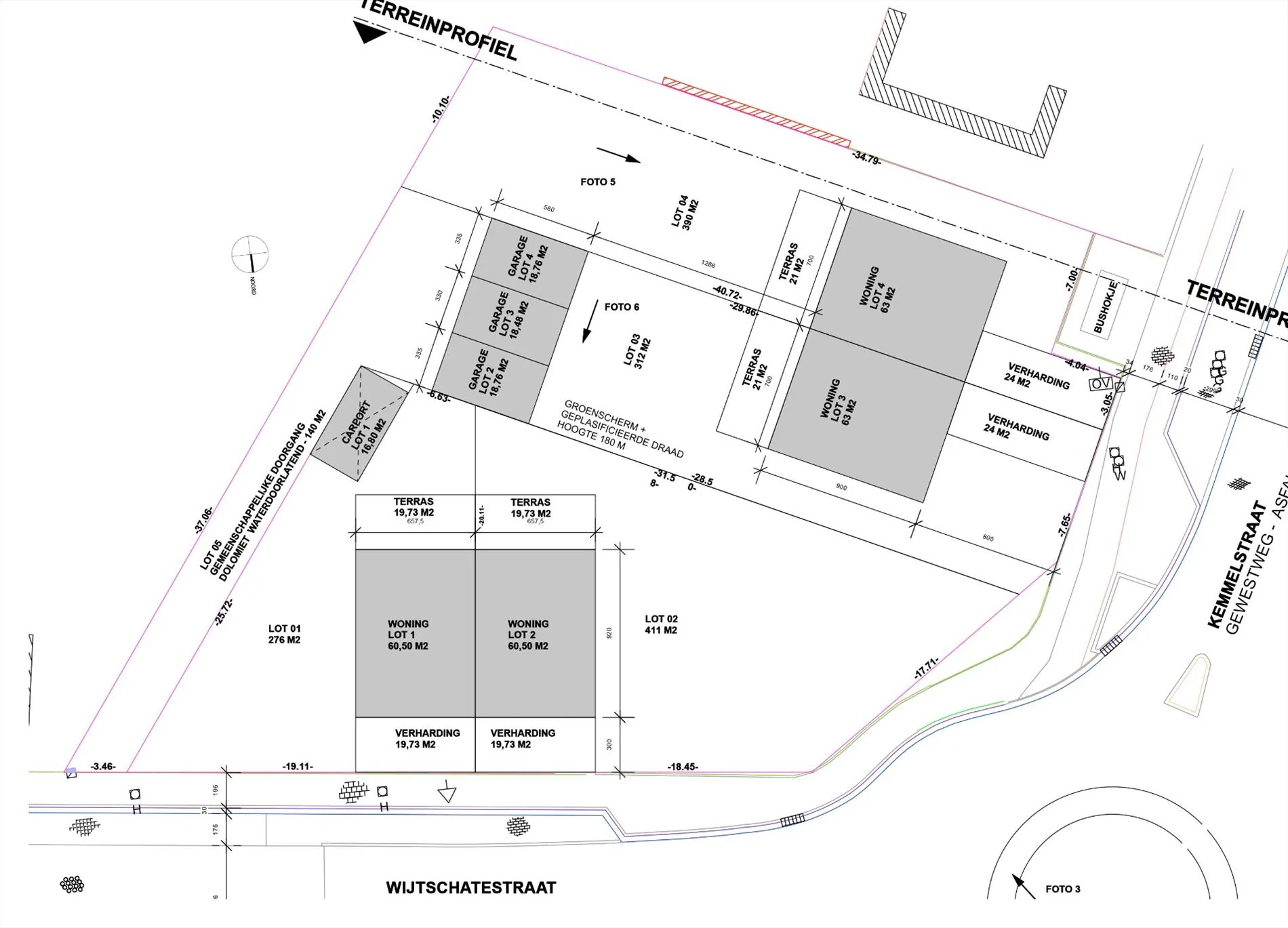
411m²

+7

Nieuwbouwproject in Kemmel

Dit is een project van 4 nieuwbouwwoningen in het dorp van Kemmel.

Plannen kunt u terugvinden als u op "Extra foto's" klikt.

Troeven van deze woningen zijn, de bereikbaarheid langs achter via een gemeenschappelijke weg die toegankelijk is vanaf de Wijtschatestraat. Mogelijkheid en toestemming om garage of carport te zetten. Afwerking wordt gedaan volgens de recentste EPB-regelgeving waarbij een E-peil van 60 wordt gehaald. De verwarming is met een condenserende gasketel, er zal spouwmuur-, vloer- en dakisolatie aanwezig zijn. Elk van deze woningen mag een carport of garage plaatsen maar deze zijn niet inbegrepen in de huidige prijs. Elke woning is voorzien van 3 slaapkamers op het verdiep.

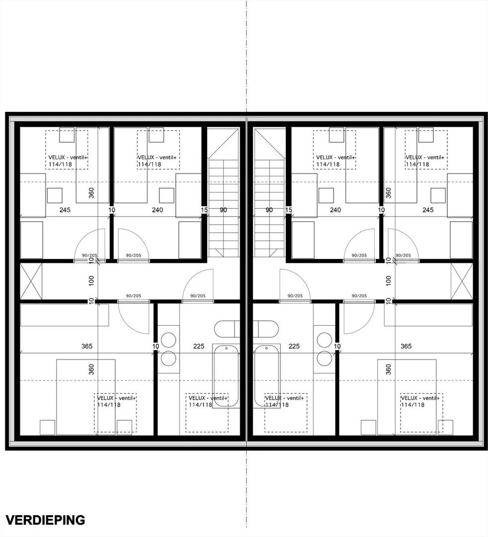
De indeling is als volgt:

Gelijkvloers: inkom/traphal (5,6m²), toilet (1,26m²), wasplaats (4,16m²), keuken (10m²), woonkamer (27,6m²).

Verdiep: 3 slaapkamers (16,17m² - 9,5m² - 9,5m²) en een badkamer (9,12m²) met douche, lavabo en een tweede toilet.

Extra: De totale bewoonbare oppervlakte is 126m². Schrijnwerk is in PVC, E-peil 60, ventilatiesysteem C+ Evo II, verdere afwerking zoals bvb. vloeren, sanitair,... worden door voorafbepaalde budgetten besproken bij aankoop, de verkoop geschiedt onder "De wet Breyne".

Voor verdere inlichtingen kunt u terecht bij Louis Vandermarliere op 0494/94.15.74 of via louis@partnersinvastgoed.be

Algemene informatie & bebouwing

Bewoonbare opp 411 m²

Meer informatie over dit pand of het pand bezoeken?

Gelieve de gemarkeerde velden correct in te vullen.
Dit veld is verplicht
Dit veld is verplicht
Dit veld is verplicht
Dit veld is verplicht
Gelieve een geldig telefoonnummer in te vullen.
Dit veld is verplicht
Dit veld is verplicht

1 nieuwbouw units
in Kemmel

100 %
VERKOCHT

1 Huis

Huis

3

Verkocht

Kopen of huren?

Vind jouw
droomwoning


INSCHRIJVEN

Verkopen of verhuren?

Hoeveel is je
woning waard?


GRATIS SCHATTING